
所在區域:澳大利亞
房源面積:51-605㎡
物業類型:高層公寓(1房-4房)
房源位置:11 Austin Street, Adelaide,South Australia
房源價格:¥173萬起|34萬澳元起
裝修情況:精裝
房產產權:永久產權
咨詢熱線:4008-399-299
可否貸款:60-70%
預估年租金回報:6%
房源特色:精品公寓
交房時間:2018年底
項目Realm Adelaide位于阿德萊德市中心的黃金地段,地理位置絕佳,周邊購物娛樂豐富,生活便捷;距離阿德萊德大學僅270米,是高收入人群首選。阿德萊德近10年房價翻番是投資者入場的好機會。開發商為投資者提供60-70%貸款額度,更加提供2年6%租金保障,是絕佳投資機會。
阿德萊德房產投資日趨火熱,并不讓人意外。它早就被評為世界第5最宜居城市,每年公寓價格增長高達4.8%,僅今年2-4月,房價就漲了8.7%,而相比悉尼、墨爾本等成熟的市場,阿德萊德的公寓價格正處在低位,增值潛力巨大。
阿德萊德擁有包括阿德萊德大學在內的世界頂尖學府與著名的葡萄酒莊,不斷吸引來自世界各地的游客、學生與投資者,為城市帶來勃勃生機。在過去的4年中,阿德萊德人口總數激增12%,并且仍在持續增長之中。
而市政府近年來更是大力投資基礎設施建設與城市形象宣傳,城市發展前景不可限量。據悉,政府已斥超過50億澳元基礎建設資金,重點投入CBD中心城區,這讓本來就寸土寸金的市中心地段物業更具進一步的上漲空間。
空中美宅系列開始于阿德萊德原來的最高點,包含一到四居室的高級住宅,高居于阿德萊德城市天際線上空,迷人輪廓引人矚目。頂層公寓與次頂層公寓高聳于城市上方,提供這座城市前所未有的獨特生活空間。











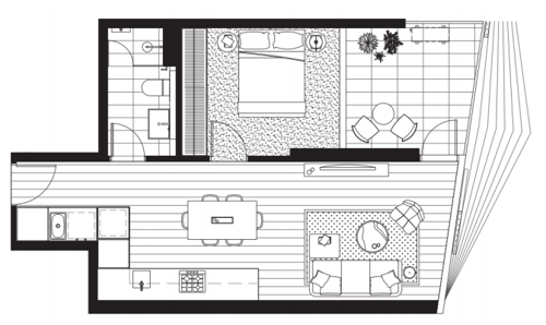
一房配置:一房一衛帶一車位(102套)
戶型面積:51—63㎡
戶型價格:AUD340,000起

二房配置:二房二衛帶一車位(198套)
戶型面積:65—142㎡
戶型價格:AUD455,000起


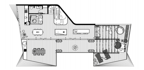
四房配置:復式四房五衛帶三車位
戶型面積:590—605㎡
戶型價格:AUD5,250,000起
(以上戶型及價格僅供參考,以實際落地項目戶型為準)
電話:4008-399-299 郵箱:ymgj@univisa.com.cn 聯系我們 網站地圖
本版面設計已工商備案 未經書面授權禁止復制或建立鏡像
? Copyright 2026 永銘國際 www.pro-color.cn 蜀ICP備12013405號-2